top of page

Create Your First Project

Start adding your projects to your portfolio. Click on "Manage Projects" to get started

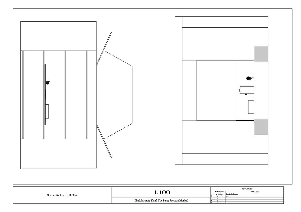
The Lightning Thief: The Percy Jackson Musical Technical drawings

Datum

2024

Projekttyp

Technical Drawings

Technical drawings made from a SketchUp CAD model using LayOut.

©2023 by Emilia Looberger. Made with Wix.com

bottom of page